Product Description

Centrifugal Grinder Series

CENTRIFUGAL GRINDER SERIES

INTERNAL START COMPONENTS

MOUNTED INSIDE PUMP RELIABLE

Reccessed Impeller Pump

Includes Internal Capacitor Kit

No Control Panel Required

115 Volt Recessed Impeller Pump for the Low Pressure Sewer Industry!

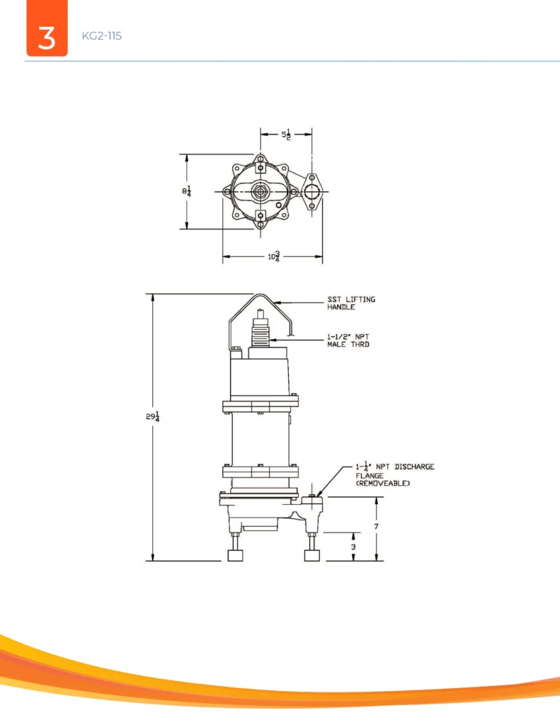
3 PERFORMANCE

  • Up to 20 GPM
  • Up to 90 Feet Shutoff

SILICON CARBIDE DUAL SEALS

  • Viton® Elastomers

NO CONTROL PANEL REQUIRED

  • Internal Start Kit
  • 115V Power Cord Plug

BEST MOTOR DESIGN

  • Motor Pressed into Housing for Superior Heat Transfer
  • Long Bearing & Seal Life

Additional Details

Other Keen Products

© 2025 Keen Pump. All rights reserved.

Get Product Info

Please Send Me